Sign up to get new listings emailed daily! JOIN SIGN IN
Alyssa Holmes
Licensed in SC and NC
REALTOR®, Broker Associate
Facebook Icon LinkedIn Icon Instagram Icon Realtor.com Icon Trulia Icon Zillow Icon 

1505 Crooked Hook Rd., North Myrtle Beach, SC 29582

$639,775
  • 1505 Crooked Hook Rd., North Myrtle Beach, SC 29582 Main Photo

31 Total Photos [Click to View All]

Active
BEDS3 BATHS3 full SQUARE FEET2,021 MLS#2528062
STATUSActive PROPERTY TYPEResidential - Single Family SUBDIVISIONKingswood On The Waterway

Property Description

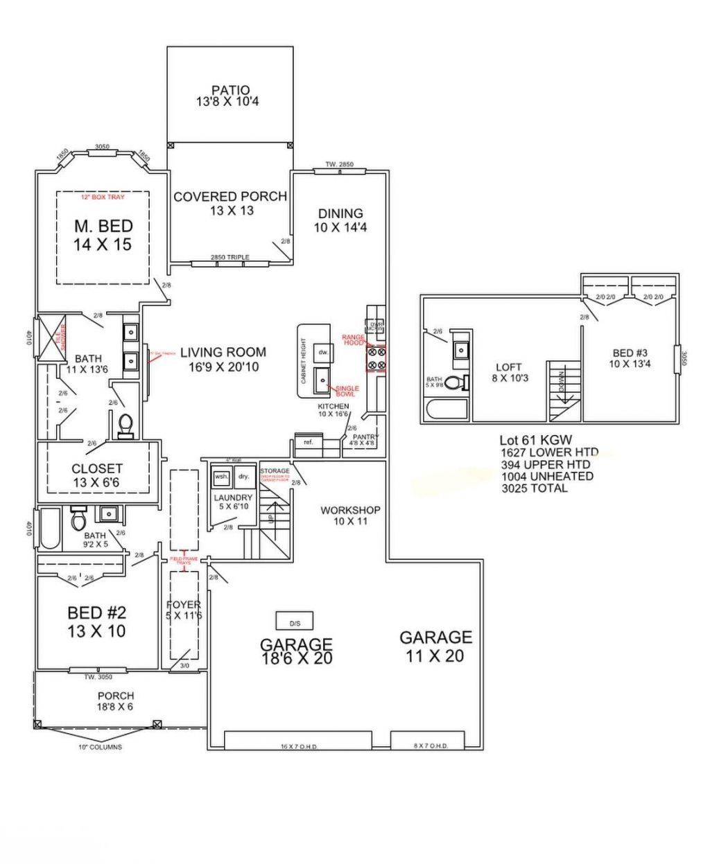
Under Construction! Welcome to the wonderful Indigo floor plan featuring 3 spacious bedrooms, 3 luxurious bathrooms, with a HUGE THREE-car garage + a workshop area, perfectly situated on a Large homesite in a prestigious Intracoastal Waterfront community in the heart of North Myrtle Beach & Just a Golf Cart ride to the Beach! Step into a bright and airy open-concept living space, thoughtfully designed with contemporary finishes and high-end fixtures throughout. The gourmet kitchen boasts state-of-the-art appliances, quartz countertops, a large center Island, natural gas range and ample cabinetry perfect for culinary adventures and entertaining guests. Relax in your luxurious main floor master suite, featuring a spacious bedroom, walk-in closet, and en-suite bathroom, with dual sinks and a gorgeous zero entry tiled shower. Located just moments away from renowned golf courses, shopping, and a variety of local dining options, every day brings a new adventure. Enjoy easy access to exciting attractions and entertainment, ensuring theres always something to explore. Public Beach Access, Central Park boasting basketball, tennis, pickleball courts, and more, as well as the NMB Aquatic and Fitness Center are all conveniently located less than 5 minutes away. Kingswood on the Waterway offers the perfect blend of relaxation and convenience. Dont miss out on this incredible opportunity to live in one of North Myrtle Beachs most desirable locations! Building lifestyles for over 40 years, we remain the premier home builder along the Grand Strand. Were proud to be the 2021, 2022, 2023, and 2024 winners of both WMBF News and The Sun News Best Home Builder awards, and the 2025 winner of The Sun News Best Home Builder. 2023, 2024, 2025, & 2026 winners of the Myrtle Beach Heralds Best Residential Real Estate Developer award, and 2024, 2025, & 2026 winners of The Horry Independents Best Residential Real Estate Developer and Best New Home Builder award. We began and remain in the Grand Strand, and we want you to experience the local pride we build today and every day in Horry and Georgetown Counties

1505 Crooked Hook Rd. | MLS# 2528062

This single family home located at 1505 Crooked Hook Rd., North Myrtle Beach, SC 29582 is currently listed for sale with an asking price of $639,775. This property was built in 2026 and has 3 bedrooms and 3 full baths with 2021 sq. ft. Crooked Hook Rd. is located in the Kingswood On The Waterway subdivision. Search Kingswood On The Waterway real estate on alyssaholmes.century21thomas.com today.

Property Features

Property Type: Residential - Single Family
Cooling: Central Air
Garage: 3 car attached
Heating: Forced Air, Gas
Home Style: Ranch
Lot Size: 0.28 Acres
Stories: 1.0
Year Built: 2026

Amenities

Dual Sinks
Main Level Primary
Split Bedrooms
Separate Shower
Walk-In Closet(s)
Bedroom on Main Level
Entrance Foyer
Kitchen Island
Stainless Steel Appliances
Solid Surface Counters
Sprinkler/Irrigation
Porch
Patio

Feature Descriptions

Appliances: Dishwasher, Disposal, Microwave, Range
Association Amenities: Owner Allowed Golf Cart, Owner Allowed Motorcycle
Community Features: Golf Carts OK, Pool
Days on Site: 134
Door Features: Insulated Doors
Exterior: HardiPlank Type
Flooring: Carpet, Luxury Vinyl, Luxury VinylPlank
HOA: Yes
HOA Fee: 85/ Monthly
Laundry: Washer Hookup
Lot: Rectangular, Rectangular Lot
Parcel#: 35703040062
Parking: Attached, Garage, Three Car Garage, Garage Door Opener
Parking Notes: Attached, Garage, Three Car Garage, Garage Door Opene
Patio/Porch: Rear Porch, Front Porch, Patio
Pool: Community, Outdoor Pool
Security: Smoke Detector(s)
Swimming Pool: Yes
Utilities: Cable Available, Electricity Available, Natural Gas Available, Phone Available, Sewer Available, Underground Utilities, Water Available
Water: Public

Local Schools

High School: North Myrtle Beach High School
Middle School: North Myrtle Beach Middle School
Elementary School: Ocean Drive Elementary

Listed By / Shown By

Listed By

Agency Name: The Beverly Group
Agency Phone: 843-349-0737

Shown By

Agent Name: Alyssa Holmes
Agent Phone: Cell: (843) 957-5673
Agency Title: CENTURY 21 Thomas

IDX logo

Estimate Your Payment

Estimated Payment

$ 1,610.46 per month $1,423.86 Principal & Interest $0.00 Property Tax (data not provided by mls) $186.60 Homeowner's Insurance

Change Payment Information

%
years/fixed
yearly
yearly (est.)
(Payments are an estimate and may vary by lender)
©2026 Thomas Real Estate, Incorporated. All rights reserved. CENTURY 21 ® and the CENTURY 21 Logo are registered service marks owned by Century 21 Real Estate LLC. Thomas Real Estate, Incorporated fully supports the principles of the Fair Housing Act and the Equal Opportunity Act. Each franchise is independently owned and operated. Any services or products provided by independently owned and operated franchisees are not provided by, affiliated with or related to Century 21 Real Estate LLC nor any of its affiliated companies. Disclaimer: All information deemed reliable but not guaranteed. All properties are subject to prior sale, change or withdrawal. Neither listing broker(s) or information provider(s) shall be responsible for any typographical errors, misinformation, misprints and shall be held totally harmless. Listing(s) information is provided for consumers personal, non-commercial use and may not be used for any purpose other than to identify prospective properties consumers may be interested in purchasing. Information on this site was last updated 04/05/2026. The listing information on this page last changed on 04/05/2026. The data relating to real estate for sale on this website comes in part from the Internet Data Exchange program of Delta Media Group MLS (last updated Sun 04/05/2026 12:55:00 PM EST) or CCAR MLS (last updated Sun 04/05/2026 12:51:23 PM EST) or HIVE MLS (last updated Sun 04/05/2026 12:49:24 PM EST). Real estate listings held by brokerage firms other than CENTURY 21 Thomas may be marked with the Internet Data Exchange logo and detailed information about those properties will include the name of the listing broker(s) when required by the MLS. All rights reserved.
Privacy Policy / DMCA Notice / ADA Accessibility

Login to My Homefinder

Pixel