Sign up to get new listings emailed daily! JOIN SIGN IN
Alyssa Holmes
Licensed in SC and NC
REALTOR®, Broker Associate
Facebook Icon LinkedIn Icon Instagram Icon Realtor.com Icon Trulia Icon Zillow Icon 
Refine Search

1939 Troy Atkinson Rd. , Mullins, SC 29574

$230,000
  • 1939 Troy Atkinson Rd. , Mullins, SC 29574 Main Photo

4 Total Photos [Click to View All]

Active
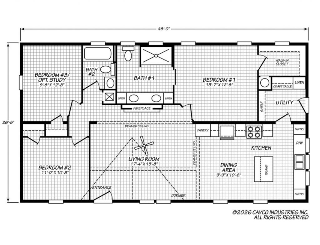
BEDS3 BATHS2 full SQUARE FEET1,280 MLS#2606528
STATUSActive PROPERTY TYPEResidential - Mobile Home SUBDIVISIONNot within a Subdivision

Property Description

Brand new 3 bedroom 2 bathroom home on a spacious 0.9-acre lot featuring modern finishes throughout. This home offers scenic views, brick underpinning, and a gravel driveway, blending style with peaceful country living. Conveniently located just a short drive to the beach and Florence, providing easy access to shopping, dining, and coastal attractions. Dont miss this move-in ready home with space, comfort, and a great location!

1939 Troy Atkinson Rd. | MLS# 2606528

This single family home located at 1939 Troy Atkinson Rd. , Mullins, SC 29574 is currently listed for sale with an asking price of $230,000. This property was built in 2026 and has 3 bedrooms and 2 full baths with 1280 sq. ft. Troy Atkinson Rd. is located in the Not within a Subdivision subdivision. Search Not Within A Subdivision real estate on alyssaholmes.century21thomas.com today.

Property Features

Property Type: Residential - Mobile Home
Heating: Central
Home Style: Mobile Home
Lot Size: 0.90 Acres
Stories: 1.0
Year Built: 2026

Amenities

Main Level Primary
Separate Shower
Walk-In Closet(s)
Stainless Steel Appliances
Deck

Feature Descriptions

Appliances: Dishwasher, Range, Refrigerator
Days on Site: 23
Exterior: Vinyl Siding
Flooring: Vinyl
HOA Fee: 0/ Monthly
Laundry: Washer Hookup
Lot: Rectangular, Rectangular Lot
Parcel#: 0870000102000
Parking: Driveway
Parking Notes: Driveway
Patio/Porch: Deck
Sewer: Septic Tank
Utilities: Septic Available

Local Schools

High School: Mullins High School
Middle School: Palmetto Jr. High
Elementary School: North Mullins Primary School

Listed By / Shown By

Listed By

Agency Name: Duncan Group Properties
Agency Contact: admin@duncangroupproperties.com

Shown By

Agent Name: Alyssa Holmes
Agent Phone: Cell: (843) 957-5673
Agency Title: CENTURY 21 Thomas

IDX logo

Estimate Your Payment

Estimated Payment

$ 578.96 per month $511.88 Principal & Interest $0.00 Property Tax (data not provided by mls) $67.08 Homeowner's Insurance

Change Payment Information

%
years/fixed
yearly
yearly (est.)
(Payments are an estimate and may vary by lender)
©2026 Thomas Real Estate, Incorporated. All rights reserved. CENTURY 21 ® and the CENTURY 21 Logo are registered service marks owned by Century 21 Real Estate LLC. Thomas Real Estate, Incorporated fully supports the principles of the Fair Housing Act and the Equal Opportunity Act. Each franchise is independently owned and operated. Any services or products provided by independently owned and operated franchisees are not provided by, affiliated with or related to Century 21 Real Estate LLC nor any of its affiliated companies. Disclaimer: All information deemed reliable but not guaranteed. All properties are subject to prior sale, change or withdrawal. Neither listing broker(s) or information provider(s) shall be responsible for any typographical errors, misinformation, misprints and shall be held totally harmless. Listing(s) information is provided for consumers personal, non-commercial use and may not be used for any purpose other than to identify prospective properties consumers may be interested in purchasing. Information on this site was last updated 04/06/2026. The listing information on this page last changed on 04/06/2026. The data relating to real estate for sale on this website comes in part from the Internet Data Exchange program of Delta Media Group MLS (last updated Mon 04/06/2026 12:51:21 AM EST) or CCAR MLS (last updated Sun 04/05/2026 11:26:47 PM EST) or HIVE MLS (last updated Sun 04/05/2026 11:29:28 PM EST). Real estate listings held by brokerage firms other than CENTURY 21 Thomas may be marked with the Internet Data Exchange logo and detailed information about those properties will include the name of the listing broker(s) when required by the MLS. All rights reserved.
Privacy Policy / DMCA Notice / ADA Accessibility

Login to My Homefinder

Pixel