Sign up to get new listings emailed daily! JOIN SIGN IN
Alyssa Holmes
Licensed in SC and NC
REALTOR®, Broker Associate
Facebook Icon LinkedIn Icon Instagram Icon Realtor.com Icon Trulia Icon Zillow Icon 

Tbd Mark Rd , Dillon, SC 29536

$199,900
  • Tbd Mark Rd , Dillon, SC 29536 Main Photo

2 Total Photos [Click to View All]

Active
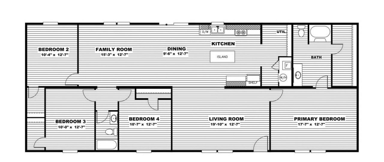
BEDS4 BATHS2 full SQUARE FEET1,791 MLS#2604768
STATUSActive PROPERTY TYPEResidential - Mobile Home SUBDIVISIONNot within a Subdivision

Property Description

Presale Opportunity: Brand-New 4-Bed/2-Bath Manufactured Home on 0.5 Acres Mark Road, Dillon, SC! Unlock spacious, affordable family living in the serene countryside of Dillon County with this impressive presale manufactured home, expertly placed on a generous 0.5-acre lot (portion of Tax Map PIN# 081-00-00-034) along quiet Mark Road. Located just minutes from Dillons conveniences, this peaceful rural spot offers easy access to I-95 for commutes to Florence, Lumberton, NC, and surrounding areasplus nearby schools, shopping, dining, and essential services. This contemporary manufactured home boasts: 4 generous bedrooms and 2 full bathsperfect for growing families, multi-generational living, or extra space for guests, home offices, or hobbies. Open-concept design with a bright kitchen featuring modern appliances, plenty of cabinetry, and a functional layout that flows seamlessly into the living and dining areas. High-quality build compliant with South Carolina standards, including a permanent foundation, attractive skirting, steps/porch entry, and energy-efficient features like central HVAC, washer/dryer connections, and thoughtful finishes for everyday comfort. Expansive outdoor potential on your private half-acreroom for a backyard oasis, garden, playset, parking, or simply enjoying the quiet, natural surroundings with plenty of breathing room. Dillon Countys zoning accommodates manufactured homes on individual lots like this (with proper permitting and setup), providing flexibility without HOA rulesideal for first-time homeowners, expanding families, retirees downsizing in style, or smart investors eyeing a reliable rental in a stable rural market. Priced attractively in the presale stagelock in your preferred customizations, builder incentives, and delivery/installation timeline before its gone! In Dillons appreciating area, where land and housing demand remains steady, this is an exceptional chance to own a brand-new, move-in-ready 4-bed home on a sizable lot with long-term value. For full pricing, available floor plan variations (inspired by popular models like spacious double-wides from trusted builders), customization options, lot photos, or to arrange a private viewing and discuss the next steps, contact me right away. Homes like this move fastsecure your dream on Mark Road today! Ready to explore? Im here to help every step of the waylets make this your new home!

Tbd Mark Rd | MLS# 2604768

This single family home located at Tbd Mark Rd , Dillon, SC 29536 is currently listed for sale with an asking price of $199,900. This property was built in 2025 and has 4 bedrooms and 2 full baths with 1791 sq. ft. Tbd Mark Rd is located in the Not within a Subdivision subdivision. Search Not Within A Subdivision real estate on alyssaholmes.century21thomas.com today.

Property Features

Property Type: Residential - Mobile Home
Home Style: Mobile Home
Lot Size: 0.50 Acres
Year Built: 2025

Feature Descriptions

Days on Site: 41
HOA Fee: 0/ Monthly
Parcel#: 081-00-00-034
Parking: Driveway
Parking Notes: Driveway

Local Schools

High School: Outside of Horry & Georgetown Counties
Middle School: Outside of Horry & Georgetown Counties
Elementary School: Outside of Horry & Georgetown Counties

Listed By / Shown By

Listed By

Agency Name: Diamond Shores Realty
Agency Phone: 843-488-2900

Shown By

Agent Name: Alyssa Holmes
Agent Phone: Cell: (843) 957-5673
Agency Title: CENTURY 21 Thomas

IDX logo

Estimate Your Payment

Estimated Payment

$ 503.19 per month $444.89 Principal & Interest $0.00 Property Tax (data not provided by mls) $58.30 Homeowner's Insurance

Change Payment Information

%
years/fixed
yearly
yearly (est.)
(Payments are an estimate and may vary by lender)
©2026 Thomas Real Estate, Incorporated. All rights reserved. CENTURY 21 ® and the CENTURY 21 Logo are registered service marks owned by Century 21 Real Estate LLC. Thomas Real Estate, Incorporated fully supports the principles of the Fair Housing Act and the Equal Opportunity Act. Each franchise is independently owned and operated. Any services or products provided by independently owned and operated franchisees are not provided by, affiliated with or related to Century 21 Real Estate LLC nor any of its affiliated companies. Disclaimer: All information deemed reliable but not guaranteed. All properties are subject to prior sale, change or withdrawal. Neither listing broker(s) or information provider(s) shall be responsible for any typographical errors, misinformation, misprints and shall be held totally harmless. Listing(s) information is provided for consumers personal, non-commercial use and may not be used for any purpose other than to identify prospective properties consumers may be interested in purchasing. Information on this site was last updated 04/06/2026. The listing information on this page last changed on 04/06/2026. The data relating to real estate for sale on this website comes in part from the Internet Data Exchange program of Delta Media Group MLS (last updated Mon 04/06/2026 12:51:21 AM EST) or CCAR MLS (last updated Sun 04/05/2026 11:26:47 PM EST) or HIVE MLS (last updated Sun 04/05/2026 11:29:28 PM EST). Real estate listings held by brokerage firms other than CENTURY 21 Thomas may be marked with the Internet Data Exchange logo and detailed information about those properties will include the name of the listing broker(s) when required by the MLS. All rights reserved.
Privacy Policy / DMCA Notice / ADA Accessibility

Login to My Homefinder

Pixel